ZS-Sándwich
ZS-Sandwich -001
| Estado de Disponibilidad: | |
|---|---|
| Cantidad: | |
Máquina perfiladora de paneles sándwich
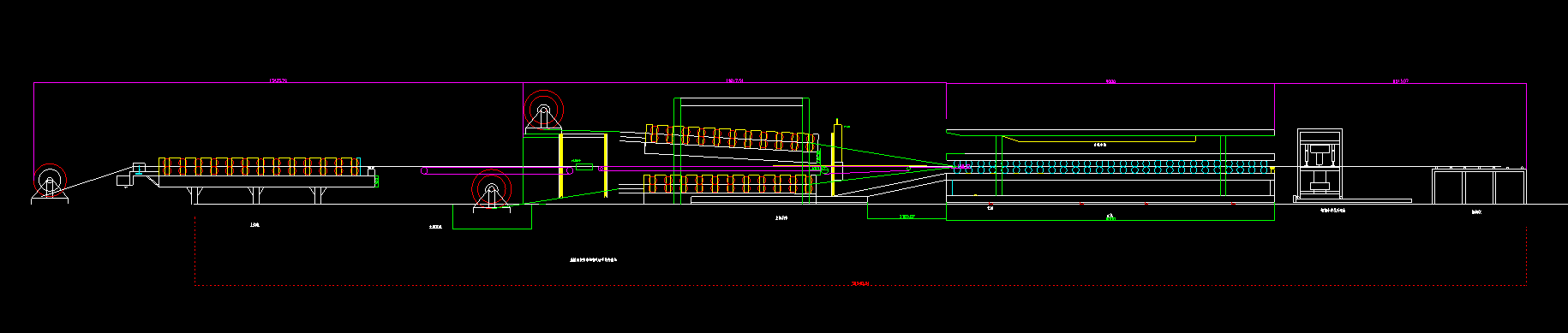
Se puede elegir el diseño del panel EPS/Rock Wool/Z Lock, podemos personalizar la máquina perfiladora de paneles sándwich.Es una línea de trabajo completa de Decoiler---Máquina formadora de rollos de láminas para techos---Dos desbobinadores---Máquinas formadoras de rollos Z Lock---Sistema de alimentación de EPS o lana de roca---Sistema de pegamento---Formado de rollos de paneles sándwich- --Sistema de corte---Mesa.
Tamaño del producto :
Producto por esta línea | Acero + lana de roca |
Medio material | Panel aislante de tiras de lana de roca |
Espesor 50~200 mm | |
Metal hojas | PPGI , GI, AL... (Nota : Si es de acero inoxidable, indíquelo, el material del rodillo es diferente) |
Espesor 0,3~0,6 mm |
Diseño para techo:
Ancho de bobina de la placa superior: 1250 mm; Ancho de la bobina de la placa inferior: 1050 mm.
Diseño para pared:
Ancho de bobina de la placa superior: 1250 mm; Ancho de la bobina de la placa inferior: 1050 mm.
Línea de producción de paneles sándwich de lana de roca y EPS | |||
NO. | Nombre | CANTIDAD (Colocar) | Observación |
Parte 1 | Máquina perfiladora de paneles de techo y pared | 2 | formando |
Parte 2 | Alimentación Dispositivo de tiras de lana de roca (alimentación manual) | 1 | |
parte 3 Sándwich Sistema de laminación de paneles | Más extenso Máquina de prensa principal | 1 | 9,0 m, 50 estaciones arriba y abajo (25 parejas) |
Más grande Rodillos de goma prensados Entero Piezas de capa de rodillo de goma más gruesa | 1 | Rodillo diámetro: 180 milímetros Espesor de capa de caucho compuesto de rodillo de pieza entera: 13 mm Dureza de capa de caucho compuesto: 50 ~ 60 | |
nivelador para espesor | 1 | ||
Pegamento sistema | 1 | 4 bombas, 2 motores, 2 inversores, 6 tubos de caída de cola | |
Eléctrico Sistema de control | 1 | ||
Parte 4 | Sándwich cortadora de paneles con tapa | 1 | corte con sierra de disco |
Usa:
La edificación con paneles sándwich se ha vuelto muy común en las construcciones.Y el desarrollo de paneles sándwich también está siendo impulsado por una amplia variedad de organizaciones.Cada vez es más difícil cumplir con el uso habitual actual.
1.
Máquina perfiladora de paneles sándwich
Se puede elegir el diseño del panel EPS/Rock Wool/Z Lock, podemos personalizar la máquina perfiladora de paneles sándwich.Es una línea de trabajo completa de Decoiler---Máquina formadora de rollos de láminas para techos---Dos desbobinadores---Máquinas formadoras de rollos Z Lock---Sistema de alimentación de EPS o lana de roca---Sistema de pegamento---Formado de rollos de paneles sándwich- --Sistema de corte---Mesa.
Tamaño del producto :
Producto por esta línea | Acero + lana de roca |
Medio material | Panel aislante de tiras de lana de roca |
Espesor 50~200 mm | |
Metal hojas | PPGI , GI, AL... (Nota : Si es de acero inoxidable, indíquelo, el material del rodillo es diferente) |
Espesor 0,3~0,6 mm |
Diseño para techo:
Ancho de bobina de la placa superior: 1250 mm; Ancho de la bobina de la placa inferior: 1050 mm.
Diseño para pared:
Ancho de bobina de la placa superior: 1250 mm; Ancho de la bobina de la placa inferior: 1050 mm.
Línea de producción de paneles sándwich de lana de roca y EPS | |||
NO. | Nombre | CANTIDAD (Colocar) | Observación |
Parte 1 | Máquina perfiladora de paneles de techo y pared | 2 | formando |
Parte 2 | Alimentación Dispositivo de tiras de lana de roca (alimentación manual) | 1 | |
parte 3 Sándwich Sistema de laminación de paneles | Más extenso Máquina de prensa principal | 1 | 9,0 m, 50 estaciones arriba y abajo (25 parejas) |
Más grande Rodillos de goma prensados Entero Piezas de capa de rodillo de goma más gruesa | 1 | Rodillo diámetro: 180 milímetros Espesor de capa de caucho compuesto de rodillo de pieza entera: 13 mm Dureza de capa de caucho compuesto: 50 ~ 60 | |
nivelador para espesor | 1 | ||
Pegamento sistema | 1 | 4 bombas, 2 motores, 2 inversores, 6 tubos de caída de cola | |
Eléctrico Sistema de control | 1 | ||
Parte 4 | Sándwich cortadora de paneles con tapa | 1 | corte con sierra de disco |
Usa:
La edificación con paneles sándwich se ha vuelto muy común en las construcciones.Y el desarrollo de paneles sándwich también está siendo impulsado por una amplia variedad de organizaciones.Cada vez es más difícil cumplir con el uso habitual actual.
1.
